Projecten

Omgevingsvergunning brandveilig gebruik nieuwbouw basisschool

IOB

Opdrachtgever

Gemeente Rotterdam Stadsontwikkeling

Locatie

Rotterdam

Omvang

790 m2

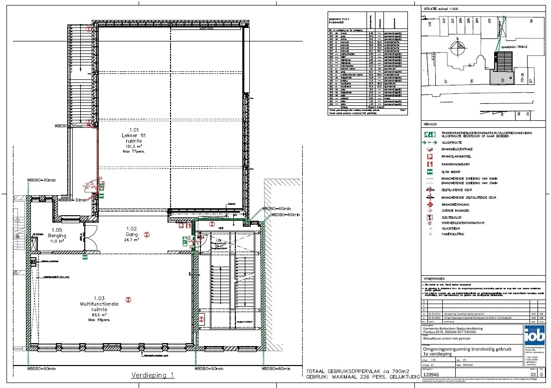
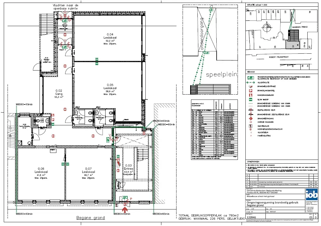
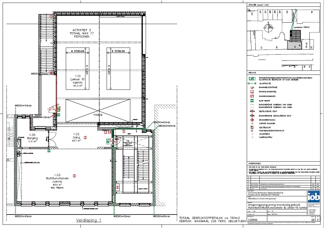
De opdrachtgever heeft een nieuwbouw basisschool laten bouwen in Rotterdam. Een basisschool mag echter alleen in gebruik genomen worden indien een omgevingsvergunning brandveilig gebruik is afgegeven door het bevoegd gezag. De opdrachtgever heeft IOB gevraagd de tekeningen voor het brandveilig gebruik op te stellen en de omgevingsvergunning brandveilig gebruik aan te vragen. Bijzonderheden: naast het reguliere gebruik van de school dient tevens een vergunning aangevraagd te worden voor regelmatig terugkerende evenementen (musicals, sinterklaasfeest, Kerstfeest etc.). IOB heeft de tekening brandveilig gebruik aan de hand van de uitvoeringstekeningen van de school opgesteld. IOB heeft ook het aanvragen van de omgevingsvergunning brandveilig gebruik via het omgevingsloket.nl verzorgd.