Projecten

Melding brandveilig gebruik Buurthuis

IOB

Opdrachtgever

Gemeente Rotterdam Stadsontwikkeling

Locatie

Rotterdam

Omvang

385 m2

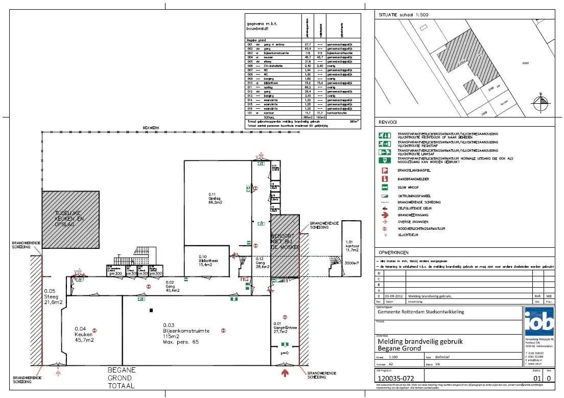
Voor een buurthuis in Rotterdam heeft de brandweer geconstateerd dat de indeling van het bouwwerk niet meer in overeenstemming was met de vergunningsstukken die in het kader van brandveiligheid afgegeven zijn. Onze opdrachtgever heeft IOB gevraagd de tekeningen van het buurthuis te actualiseren en deze in te dienen bij de brandweer. IOB heeft derhalve de tekeningen opgesteld en een melding brandveilig gebruik ingediend via het omgevingsloket. Een melding brandveilig gebruik is noodzakelijk indien meer dan 50 personen gelijktijdig gebruik maken van een bouwwerk. IOB heeft de inspectie op locatie, het inmeten van het bouwwerk, de brandveiligheidselementen in kaart gebracht, de tekeningen brandveilig gebruik opgesteld en ingediend via het omgevingsloket.nl